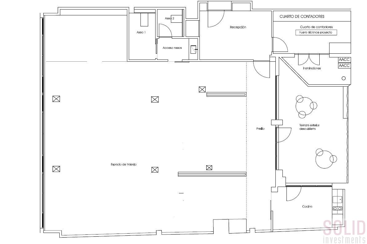
Oficina en CIUDAD VELLA, con 203 m² construidos, 2 aseos, nuevo, exterior, planta 1, 1 terraza(s), cocina amueblada, ascensor, amueblado, portero, aire acondicionado frío/calor
SOLIDINMUEBLES ALQUILA estupendo despacho en el centro de Valencia junto a la Plaza del Ayuntamiento. Ubicacion inmejorable.
Cuenta con 203 m2, en un espacio diáfano para distribuir a conveniencia, con recepción independiente, cocina y patio. Aseos dentro del despacho. Super luminoso.
Recién reformado totalmente con climatización por conductos y primeras calidades. Cerramientos nuevos. Exterior. Espacio para cartel en fachada de mas de 10 metros lineales.
Gastos de comunidad incluidos, agua incluida en el precio y luz dada de alta. IBI no incluido en el precio (aprox. 786 €/año).
Andando a 5 minutos a la Estación de Renfe boca de metro de la calle Jativa, calle San Vicente, Centro historico.
PREGUNTE SIN COMPROMISO.
VEN A VERLO, TE ENCANTARA!!!!
